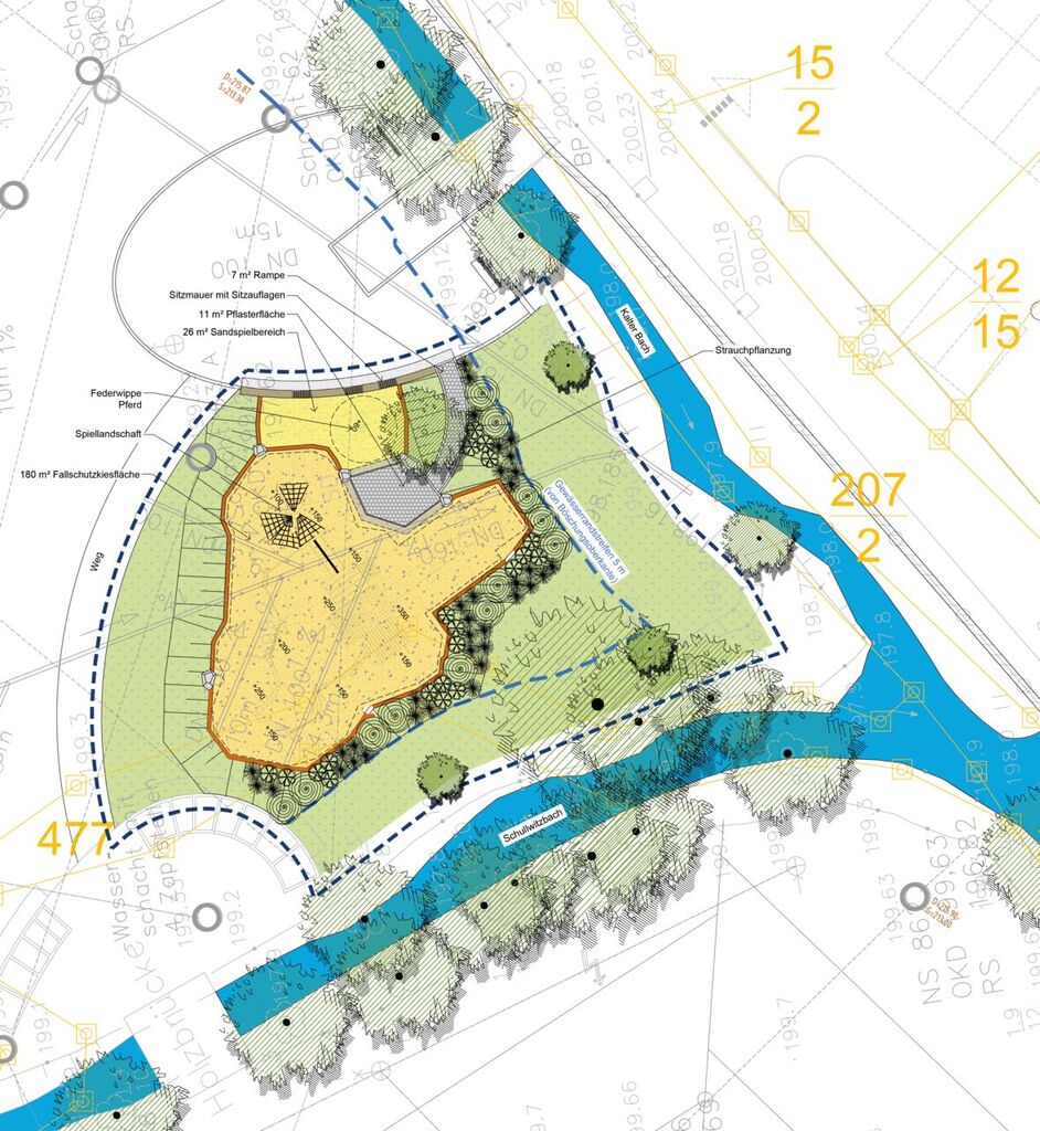
Neubau Spielplatz, Marktplatz Dittersbach
Auftraggeber:
Gemeindeverwaltung Dürrröhrsdorf-Dittersbach
Projektlaufzeit:
2020 - 2022
Leistungen:
- Leistungsphasen 1 bis 9 gemäß HOAI
Auftraggeber:
Gemeindeverwaltung Dürrröhrsdorf-Dittersbach
Projektlaufzeit:
2020 - 2022
Leistungen:
- Leistungsphasen 1 bis 9 gemäß HOAI